REQUEST A TOUR If you would like to see this home without being there in person, select the "Virtual Tour" option and your agent will contact you to discuss available opportunities.
In-PersonVirtual Tour

$ 159,000
Est. payment | /mo
4 Acres Lot
$ 159,000
Est. payment | /mo
4 Acres Lot
Key Details
Property Type Vacant Land
Listing Status Active
Purchase Type For Sale
Subdivision Gordon Lakes
MLS Listing ID 3998808
HOA Y/N No
Annual Tax Amount $2,067
Tax Year 2024
Lot Size 4.000 Acres
Property Description
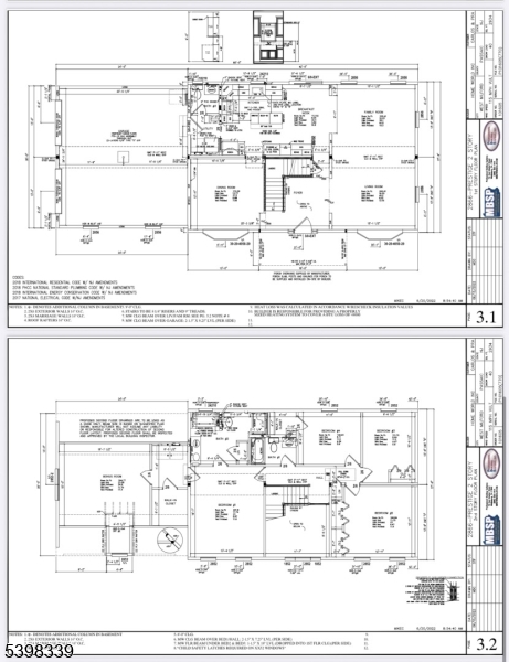
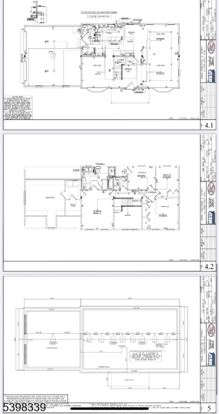
Nestled in the heart of Gordon Lakes Estates, this expansive 4-acre lot offers a rare blend of privacy and convenience. With access from both Ferndale Rd and Otterhole Rd, this prime piece of land borders serene parkland, providing a tranquil backdrop for your dream home. Site plans are available for a 3,000 sq. ft. single-family residence with septic, making development seamless. Whether you're looking to build your own retreat or invest in a coveted location, this property presents an unparalleled opportunity to own a piece of nature while staying connected to the community.
Location
State NJ
County Passaic
Building
Sewer Septic System Required
Water Well Required
Schools
Elementary Schools Paradise Knl.
Middle Schools Macopin
High Schools W Milford
Others
Senior Community No

Information deemed reliable but not guaranteed. Copyright © 2025 Garden State Multiple Listing Service, L.L.C. All rights reserved.
Listed by WERNER REALTY
GET MORE INFORMATION

Armando Pina
International Realtor & CEO of The Pina Group | License ID: 2191407





